Leave a Message

Thank you for your message. We will be in touch with you shortly.

See all photos
5033 Boulders Drive

5033 Boulders Drive

$399,000  |  5033 Boulders Drive, Gurnee, IL 60031

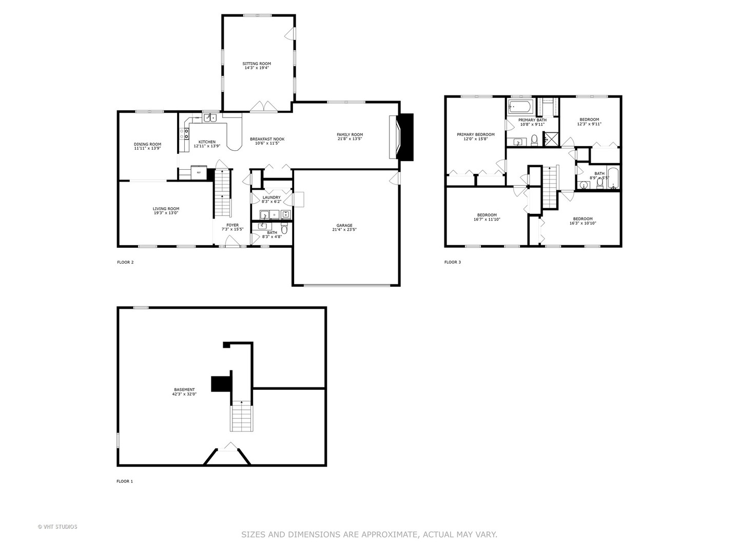
Look no further! Welcome to The Boulders! This stunning & spacious 4 bedroom, 2 1/2 bath residence has an abundance of sunlight. The kitchen offers an open concept with hardwood floors, an eat-in dining area which opens up to a gorgeous sun drenched sunroom. Enjoy easy access from the sun room out onto the new patio area for entertaining or just simply enjoying the beautiful backyard! The comfy & cozy family room has carpet and is complete with a brick gas fireplace. The first floor also features a a carpeted dining and living room. The large laundry room has hardwood floors, is conveniently located on the first floor next to the 2 car garage and is adjacent to the powder room. The lovely primary bedroom is carpeted and the primary bath offers a jetted tub and a separate shower Three other bedrooms have large closets space, carpet and great views. This home offers great storage on all levels, including an unfinished basement plus an attic and crawl space. Don't miss the opportunity to make this beautiful home yours! Recent updates: HVAC 2021, Hot Water Heater 2021, Roof 2020, Siding 2020, Windows 2017, Sun Room 2017, and Patio 2017.

Request Info

SOLD

Status

4

Bedrooms

3

Bathrooms

2,577 Sq.Ft.

Living Area

1990

Year Built

Features & Amenities

Interior

Total Bedrooms:
4
Total Bathrooms:
3
Full Bathrooms:
2
Half Bathrooms:
1
Laundry Room:
In Unit, Sink
Flooring:
Hardwood
Fireplace:
Wood Burning
Appliances:
Range, Microwave, Dishwasher, Refrigerator, Washer, Dryer
Other Interior Features:
Open Floorplan

Area & Lot

Status:
Sold
Living Area:
2,577 Sq.Ft.
Lot Size:
10,432.62 Sq.Ft.
MLS® ID:
12392207
Type
Residential
Year Built:
1990
Architecture Styles:
Colonial
Elementary School:
Woodland Elementary School
Middle School:
Woodland Middle School
High School:
Warren Township High School
School District:
121

Exterior

Garage Space:
2.0
Water Source:
Public
Roof:
Asphalt
Lot Features:
Mature Trees
Parking:
Concrete, Garage Door Opener, On Site, Garage Owned, Attached, Garage
Heat Type:
Natural Gas, Forced Air
Air Conditioning:
Central Air
Sewer:
Public Sewer
Substructure:
Concrete Perimeter

Financial

Sales Price
$399,000
Real Estate Taxes
$10,714/yr

Location

Follow Me On Instagram